3220 Tranquility LoopLongs, SC 29568
Due to the health concerns created by Coronavirus we are offering personal 1-1 online video walkthough tours where possible.



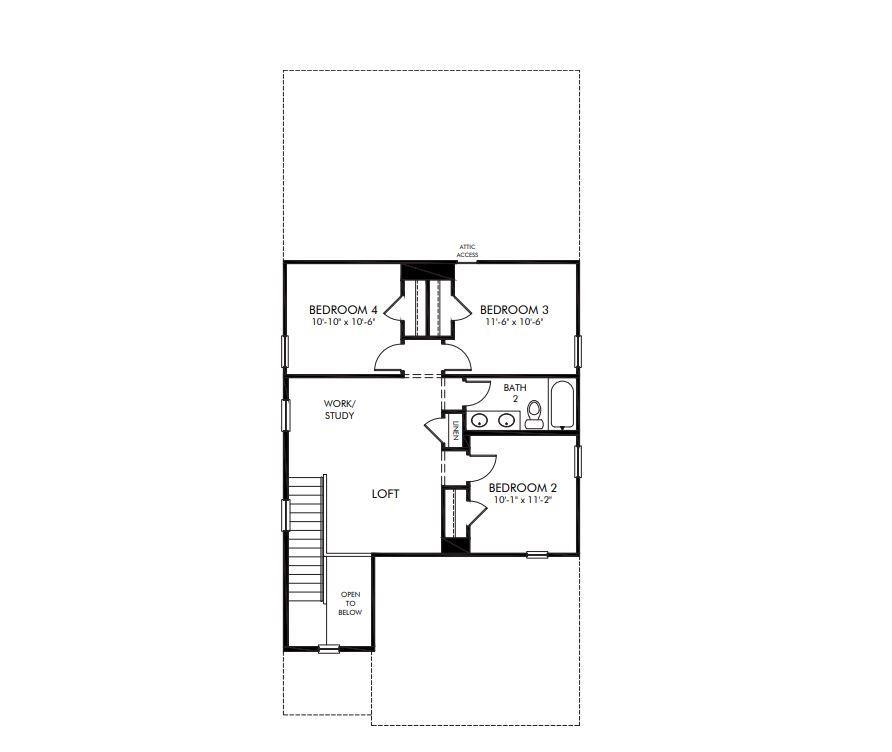
Brand new, energy-efficient home available by Dec 2025! Unwind at the end of the day in the private first-floor primary suite, complete with dual sinks and an impressive walk-in closet. In the kitchen, a sizeable island anchors the open-concept living space. Upstairs, the loft makes a great media room. From exciting attractions to relaxing weekends along sandy beaches and serene golf courses, Waterside offers easy access to the best shopping, dining and entertainment in North Myrtle Beach. Our new one- and two-story homes are perfect for any lifestyle. And when you're not out exploring, enjoy luxurious amenities including swimming pool, sports courts, day dock and much more. Each of our homes is built with innovative, energy-efficient features designed to help you enjoy more savings, better health, real comfort and peace of mind.
| 13 hours ago | Listing updated with changes from the MLS® | |
| 13 hours ago | Listing first seen on site |
Listing information is provided by Participants of the Coastal Carolina Association of Realtors. IDX information is provided exclusively for personal, non-commercial use, and may not be used for any purpose other than to identify prospective properties consumers may be interested in purchasing. Information is deemed reliable but not guaranteed. Copyright 2025, Coastal Carolinas Multiple Listing Service, Inc
Last checked: 2025-12-10 12:30 PM UTC


Did you know? You can invite friends and family to your search. They can join your search, rate and discuss listings with you.